ID №: 4540830
Трехкомнатная квартира на Взлётке в долгосрочную аренду
В самом центре деловой и светской жизни Красноярска!
Сдается в долгосрочную аренду новая трехкомнатная квартира на Взлётке в ЖК «Александровский».
В квартире только закончен современный ремонт, вся мебель и бытовая техника – новые.
Квартира ранее в аренду не сдавалась.
Особенности:
-удачное расположение - в шаговой доступности бизнес-центры, школа, магазины, кафе, рестораны, торгово-развлекательные комплексы;
- объединенная кухня-гостиная;
- хозяйская и детская либо гостевая спальни удобно расположены по разные стороны квартиры;
- раздельный санузел;
- свежий качественный современный ремонт;
- квартира полностью укомплектована мебелью и бытовой техникой, необходимой для комфортного проживания;
- закрытая территория для комфорта и безопасности жильцов;
- красивая и удобная входная группа с консьержем.
Немного цифр и полезная информация:
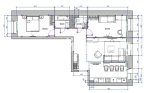
- площадь квартиры 73,5 кв. м;
- 10-й этаж;
- депозит в размере месячной арендной платы;
- в стоимость аренды входит обязательный ежемесячный клининг;
- возможность проживания с животными решается в индивидуальном порядке.
Профессиональное и, местами, персональное мнение:
Комментирует Ольга Лаврентьева, риелтор АН «Элитный Красноярск»: «Хорошие семейные квартиры – настоящий дефицит на рынке жилья. Если вы ищете комфортную современную квартиру в самом центре динамичной деловой Взлётки, то обязательно обратите внимание на это предложение.
Квартира укомплектована качественной мебелью и бытовой техникой и готова к встрече новых жильцов».
Все объекты сайта "Элитный Красноярск" продаются без оплаты услуг покупателем.
Выбрать дату просмотра
Контакты
















